Westcott Ridge Condominiums
The following listing is available for first-time homebuyers who have a valid First-Time Homebuyers Program Passport to Homeownership. A Passport to Homeownership is issued following completion of the five-step application process.

Sales Price: $100,188 subject to approval
Up to 1 ADU Unit
- Condominium
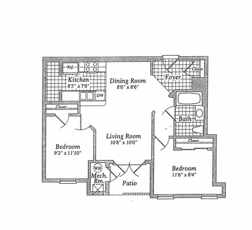
- 2 bedrooms/1 bathroom
- 682 square feet
- 1-3 people. Please be advised larger-sized families have a priority ahead of smaller families.
*Per the Virginia Maintenance Code, the maximum occupancy for this property is a household size of 3. - Schools:
- Willow Springs Elementary School
- Lanier Middle School
- Fairfax High School
Features:
- New Kitchen Appliances
(Gas stove, & dishwasher) - Maytag Washer & Dryer
- Granite Countertops
- Hardwood & Tile Floors
- Enclosed Patio
- 1 Assigned parking space
- Community swimming pool
- Community Clubhouse
- Tot Lot/Playground
Amenities:
Community pool, Secure building, and elevator.
Located near:
Close to Fair Oaks Mall, commuter lot, restaurants, and the Government Center. Convenient to I66, Route 28 & 29, airport less than 10 miles, bus stop less than 1 mile, and walking distance to Fairfax Corner shopping center.
Convenient access to:
Access to Rte. 28, and minutes to Rte. 50, I-66 and Rte. 267; 15 minutes to Dulles International Airport and 15 minutes to Herndon and Reston
PHOTOS:





FLOOR PLANS:

REQUIRED FUNDS AND FEES:
- Required Buyer Funds and Estimated Closing Costs: $5,009
Amount may vary according to lender, type of loan, credit score and reserves. Estimate is based on 2% required down payment. This estimate includes a $1,000 good faith deposit which will be required at the time the contract is signed. - Monthly Dues:
Condominium Association: $318.55 monthly
Includes water, trash and snow removal, common area maintenance.
Up to $10,000 in CDBG down payment assistance may be available to eligible applicants depending upon funding availability.
QUESTIONS:
For additional information, please email homeownership@fairfaxcounty.gov, or contact the Homeownership Resource Center at 703-246-5087.