Reston, VA
The following listing is available for first-time homebuyers who have a valid First-Time Homebuyers Program Passport to Homeownership. A Passport to Homeownership is issued following completion of the five-step application process.
Sales Price: $258,982 subject to approval
Up to 3 ADU Units
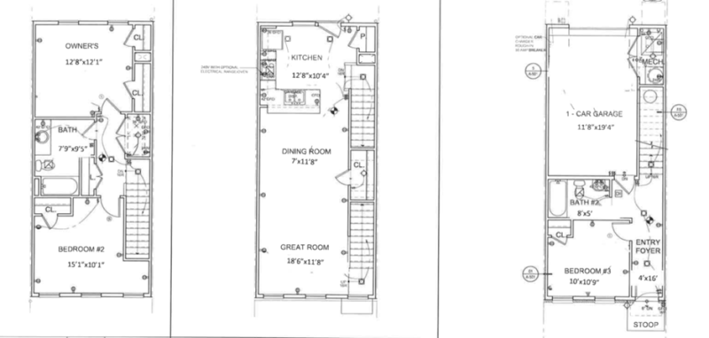
- Townhouse (Interior)
- 3 bedrooms/2 bathrooms
- 1,370 square feet
- 1-8 people. Please be advised larger-sized families have a priority ahead of smaller families.
*Per the Virginia Maintenance Code, the maximum occupancy for this property is a household size of 7. - Schools:
- Lake Anne Elementary School
- Hughes Middle School
- South Lakes High School
Features:
- One car garage, heat source, private fencing, special landscaping
- Includes microwave
- Washer & dryer hook up
Amenities:
Walking trails, pond(s) with bridge, gazebos, tot lot
Located near:
Perfectly situated near Reston Town Center, Reston Station, and Plaza America, this community offers easy access to everyday essentials and seamlessly blends urban energy with serene living. Its unmatched connectivity includes effortless access to all major commuting routes within Metro DC, and is minutes to Dulles International Airport, making it the ultimate destination for work, travel, and play.
Convenient access to:
Direct access to Rte. 28, and minutes to Rte. 50, I-66 and Rte. 267; 15 minutes to Dulles International Airport and 15 minutes to Herndon and Reston
FLOOR PLANS:

REQUIRED FUNDS AND FEES:
- Required Buyer Funds and Estimated Closing Costs: $12,949
Amount may vary according to lender, type of loan, credit score and reserves. Estimate is based on 2% required down payment. This estimate includes a $1,000 good faith deposit which will be required at the time the contract is signed. - Monthly Dues:
Condominium Association: $230 monthly
Includes front yard maintenance and all common areas, snow and trash,
Trail system, professional property management. - Downpayment Assistance: $20,000 pending funding availability and income eligibility.
QUESTIONS:
For additional information, please email homeownership@fairfaxcounty.gov, or contact the Homeownership Resource Center at 703-246-5087.